Aprašymas :
PRITAIKYMAS
Medinis vasarnamis Fay jau kuris laikas yra vienas iš labiausiai pamėgtų modelių tarp mūsų klientų. Jis turi keturias atskiras zonas: svetainė sujungta su virtuve, du miegamieji kambariai ir vonios kambarys. Namo prieangyje galėsite puikiai leisti laiką net ir lietingą dieną, nes prieangis turi įrengtą stogą, kuris saugos jus nuo lietaus lašų.
KOKYBĖS STANDARTAS
Medinis vasarnamis yra pagamintas iš aukščiausios kokybės lėtai augančios ir kruopščiai išdirbtos šiaurinės eglės medienos. Įmontuotos dvigubos stiklinės durys bei įprojektuoti penki vienvėriai langai suteiks šviesos ir jaukumo visose poilsio zonose.
CHARAKTERISTIKA
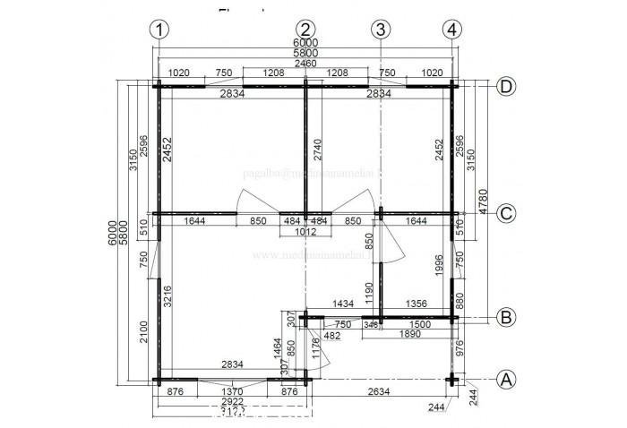
Medinis vasarnamis turi 44 mm storio su dvigubu špuntu eglės medienos sienas. Bendras aukštis 2.686 m., vidaus plotas 24 kv. m. Namelyje yra vienos vienvėrės išorės, pusiau stiklintos, atsidarančios į išorę durys ir trejos vienvėrės vidaus, pilnai medinės, atsidarančios į išorę durys. Name yra penki vienvėriai, atsidarantys į išorę langai ir vienas dvivėris langas, taip pat atsidarantis į išorę. Tiek langai, tiek durys yra su stiklo paketu bei sandarinimo tarpine nuo pratekėjimų.
Siūlome pasidomėti mūsų gaminamais mediniais garažais, kurie gražiai galėtų derėti prie šio namelio: https://www.mediniainameliai.lt/mediniai-garazai
Aprašymas:
Sienojinės lentos: 44mm storio, su dvigubu špuntu, spygliuočių mediena
Bendras aukštis: 2.686m
Sienų aukštis: 2.096m
Išorės matmenys: 6 x 6m
Vidaus plotas: 24m²
Minimalus pamato dydis: 5.8 x 5.8m
Stogelio išsikišimas priekyje: 1m
Stogo plotas: 46.20m²
Stogo nuolydis: 11°
Durys:
– 1 vienvėrės išorės, pusiau stiklintos, atsidaro į išorę
– 3 vienvėrės vidaus, medinės, atsidaro į išorę
Langai:
– 5 vienvėriai, atsidaro į išorę
– 1 dvivėris, atsidaro į išorę
Langai ir durys su stiklo paketu, sandarinimo tarpinė nuo pratekėjimų
Galimas vidaus išplanavimas:
– 2 miegamieji
– Vonios/ WC kambarys
– Svetainė
Komplektacija:
Stogo lentos su špuntu, min. 18mm storio, gali būti dygiuotos
Pamatinių lentų komplektas
Grindų lentos su špuntu, min. 19mm storio, gali būti dygiuotos
Durų spyna su cilindru
Reguliuojami durų vyriai
Vinukai, varžteliai ir ilgi varžtai sienojams
Montavimo instrukcija
Pastabos:
Į kainą įskaičiuotas PVM.
Pristatome visoje Lietuvoje.
Montavimo darbai į kainą neįskaičiuoti – teiraukitės.
Lengva stogo konstrukcija, tinkama bituminėms čerpėms ar kitai lengvai stogo dangai. Jeigu planuojate naudoti sunkesnę stogo dangą – susisiekite su mumis dėl papildomos informacijos.
Medinis sodo namelis gaminamas iš džiovintos, bet nedažytos, neimpregnuotos medienos.
Nameliams rekomenduojamas plokščias, tvirtas pagrindas. Statant namelį ant polinių pamatų, papildomai reikalingas medinis karkasas
* Prekė gali nežymiai skirtis nuo aprašymo ir nuotraukų.










Reviews
There are no reviews yet.